Public Notice - ZONING BYLAW AMENDMENTS & CONCEPT PLAN AMENDMENT
PUBLIC NOTICE
ZONING BYLAW AMENDMENTS & CONCEPT PLAN AMENDMENT
Regina City Council, at their May 6, 2026 meeting, starting at 1:00 p.m., will:
- Consider an amendment to the Greens on Gardiner Concept Plan, as described below.
- Facilitate a public hearing respecting a proposed amendment to The Regina Zoning Bylaw, 2019 (application to rezone property), as described below.
Citizens who want to address City Council may attend the meeting in person or via teleconference.
- Please register by completing the online form on Regina.ca/register.
- The deadline to register is no later than May 4, 2026 – 12:00 p.m.
- A written brief, in advance, is required to present at a City Council meeting.
A copy of the proposed bylaws, to amend The Regina Zoning Bylaw, 2019, will be available for examination on the City’s website, commencing May 1, 2026.
Find more information about presenting to Council and Committees at Regina.ca/Register.
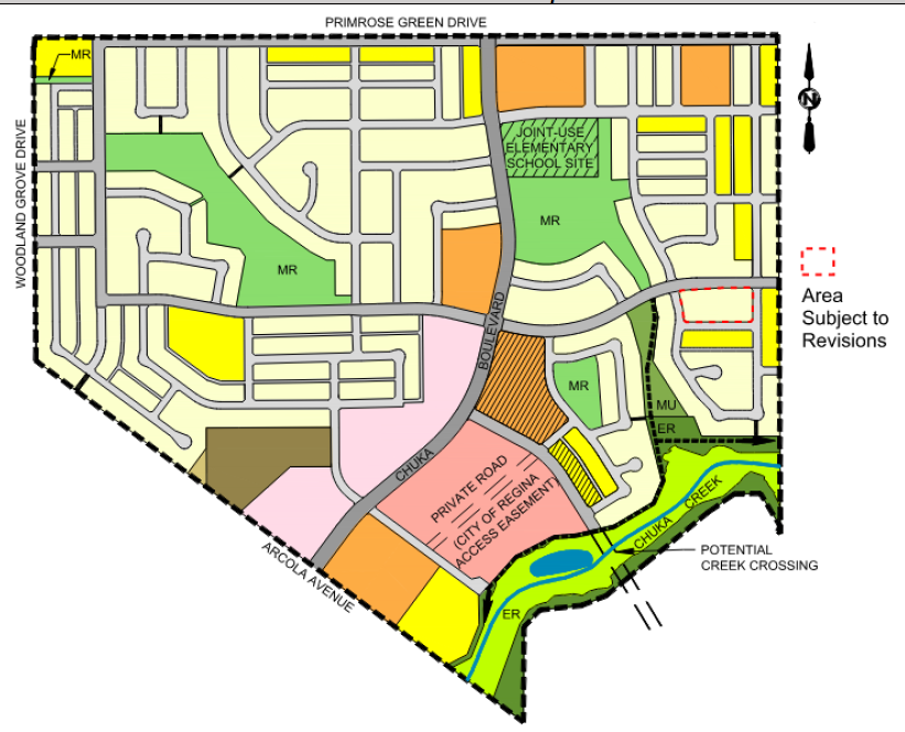
PROPOSED CONCEPT PLAN AMENDMENT
|
Greens on Gardiner Concept Plan |
|
![]() |
|
|
Proposed Land- Use Scheme |
|
|
Reason: |
The Proponent is applying to amend the Greens on Gardiner Concept Plan by redesignating land to low-density residential. Only the highlighted areas are affected. The current plan is available for viewing, for comparison, on the City’s website. |
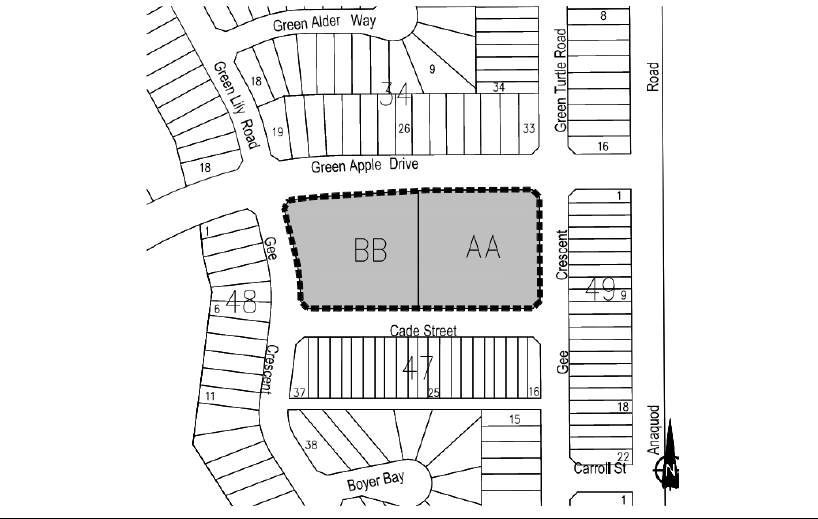
PROPOSED REZONING
|
3631 & 3855 Gee Crescent |
|
|
Current Zoning: |
RH – Residential High-Rise Zone |
|
Proposed Zoning: |
RN – Residential Neighbourhood Zone |
|
Reason: |
The RN – Residential Neighbourhood is intended to accommodate one- and two-unit residential development. |
![]() |
|

